




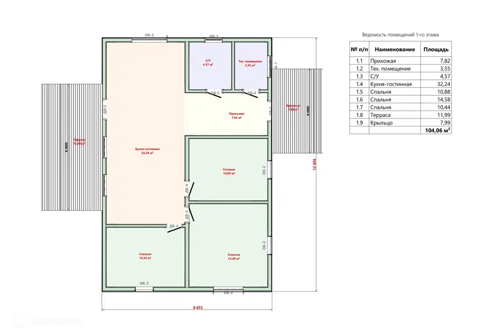
- СДК "Диагональ"ИНН: 430503473444От 24 410 ₽/мес.В ипотекуЗапросить сметуДетальный расчёт
на строительство

ИНН: 430503473444






ИНН: 430503473444
Сергей
Татьяна
Дмитрий
Татьяна
Надежда
Людмила
Людмила
Что такое межевание земельного участка и для чего его делают
Как построить дом в ипотеку СберБанка
Ипотека на ИЖС в упрощённом порядке от Сбера: условия и требования
Воспользуйтесь удобной формой поиска и веберети в каталоге оптимальный готовый проект дома. Для уточнения характеристик звоните или оставьте заявку на консультацию.
Cтоимость постройки дома в Ростове-на-Дону от 985,6 тыс. до 35 млн руб., цена зависит от ряда факторов:
Мы стараемся поддерживать актуальные цены, но рынок строительных материалов в Ростове-на-Дону очень быстро меняется, поэтому итоговая стоимость индивидуального строительства загородного дома в СДК "Диагональ" может отличаться как в большую, так и в меньшую сторону.
Платформа Домклик — предоставляет возможность выбора подрядчика для строительства дома.
Выбранный вами подрядчик самостоятельно несет ответственность за качество работ. Мы рекомендуем внимательно изучать его отзывы, рейтинг и портфолио.