Барн 8х8м
59 м²,каркасный дом,2 спальни,1 этаж
Цена от 13.02.2026
от 3 510 000 ₽
В ипотеку
🏠 Как заказать строительство дома по проекту «Барн 8х8м» в Донецке на сайте Домклик?
📚 Актуальны ли цены указанные на сайте?
💸 Можно ли заказать строительство дома «Барн 8х8м» в кредит, ипотеку, рассрочку?
Базовая комплектация
Цена
от 3 510 000 ₽
В ипотеку
Конструктор проекта дома
Укажите желаемые изменения в проекте и получите детальный расчет
Основное
Тип фундамента
Свайно-винтовой
Срок строительства
3-6 месяцев
Конструктив
Внешние стены
Каркасный дом
Материал перекрытий
нет значения
Материал перегородок
Деревянные
Кровля
Покрытие
Фальцевая
Окна
Тип окон
ПВХ
Количество камер
2
Отделка
Внешние стены
планкен/имитация бруса
Внутренние стены
планкен/имитация бруса
Покрытие пола
шпунтованая доска
Потолок
планкен/имитация бруса
О проекте
Проект дома может меняться в зависимости от ваших предпочтений
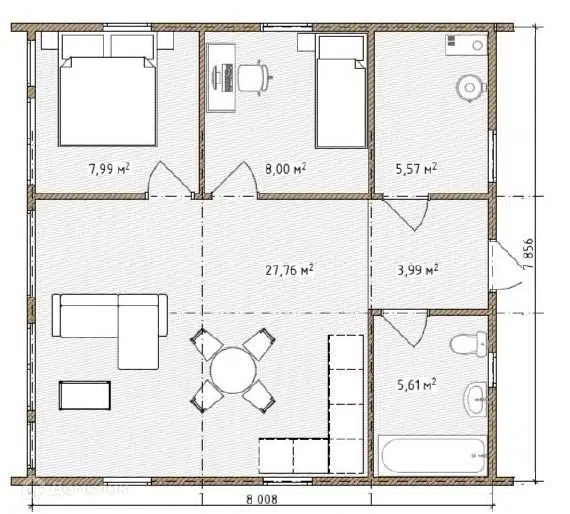
Общая площадь дома 59 м² |
Площадь застройки 64 м² |
Тип фундамента Свайно-винтовой |
Материал стен Каркасный дом |
Толщина внешних стен 150 мм |
Тип отделки фасада Имитация бруса |
Материал перегородок Деревянные |
Материал кровли Фальцевая |
Высота потолков от 2,5 м |
Количество этажей 1 |
Количество спален 2 |
Количество санузлов 1 |

Пока нет отзывов о подрядчике
Но вы можете оставить первый
Проекты подрядчика "Твой Домостроитель"
Похожие проекты от других подрядчиков
Участки под строительство дома
Подборка для вас!
Участки с подходящей площадью под строительство дома
Платформа Домклик — предоставляет возможность выбора подрядчика для строительства дома.
Выбранный вами подрядчик самостоятельно несет ответственность за качество работ. Мы рекомендуем внимательно изучать его отзывы, рейтинг и портфолио.
Финальные условия кредитования определяются при заключении договора.
ИНН: 6700030379
Что нужно для строительства?
Какие сроки строительства?
Проконсультируете по строительству?
График работы:



