ДК-193 (домокомплект)
84 м²,панельно-каркасная технология,2 спальни,1 этаж
Цена от 17.09.2025
от 4 032 000 ₽
В ипотеку
🏠 Как заказать строительство дома по проекту «ДК-193 (домокомплект)» в Донецке на сайте Домклик?
📚 Актуальны ли цены указанные на сайте?
⭐ Почему стоит заказать строительство дома у компании Теплодина в Донецке?
💸 Можно ли заказать строительство дома «ДК-193 (домокомплект)» в кредит, ипотеку, рассрочку?
Базовая комплектация
Цена
от 4 032 000 ₽
В ипотеку
Конструктор проекта дома
Укажите желаемые изменения в проекте и получите детальный расчет
Основное
Тип фундамента
Свайно-винтовой
Срок строительства
7-30 дней
Конструктив
Внешние стены
Панельно-каркасная технология
Вентиляция фасада
Естественная
Материал перекрытий
Деревянные
Материал перегородок
Деревянные
Огнебиозащита
Нет
Утепление
Пол первого этажа
150-200 мм
Внешние стены
150-200 мм
Внутренние стены
150-200 мм
Межэтажные перекрытия
150-200 мм
Кровля
150-200 мм
Утеплитель
Knauf
Тепло-звукоизоляция
Ветрозащитная мембрана
Пароизоляция
Изоспан/Ондутис
Кровля
Покрытие
Профнастил
Снегозадержатели
Нет
Водосточная система
Нет
Окна
Тип окон
ПВХ
Количество камер
5
Отлив
Есть
Подоконники
дерево
Отделка
Внешние стены
Имитация бруса
Внутренние стены
Евровагонка
Покрытие пола
Фанера 18 мм
Потолок
Евровагонка
Межкомнатные двери
Нет
Входная дверь
Сейф-дверь с терморазрывом
Межэтажная лестница
Нет
О проекте
Проект дома может меняться в зависимости от ваших предпочтений
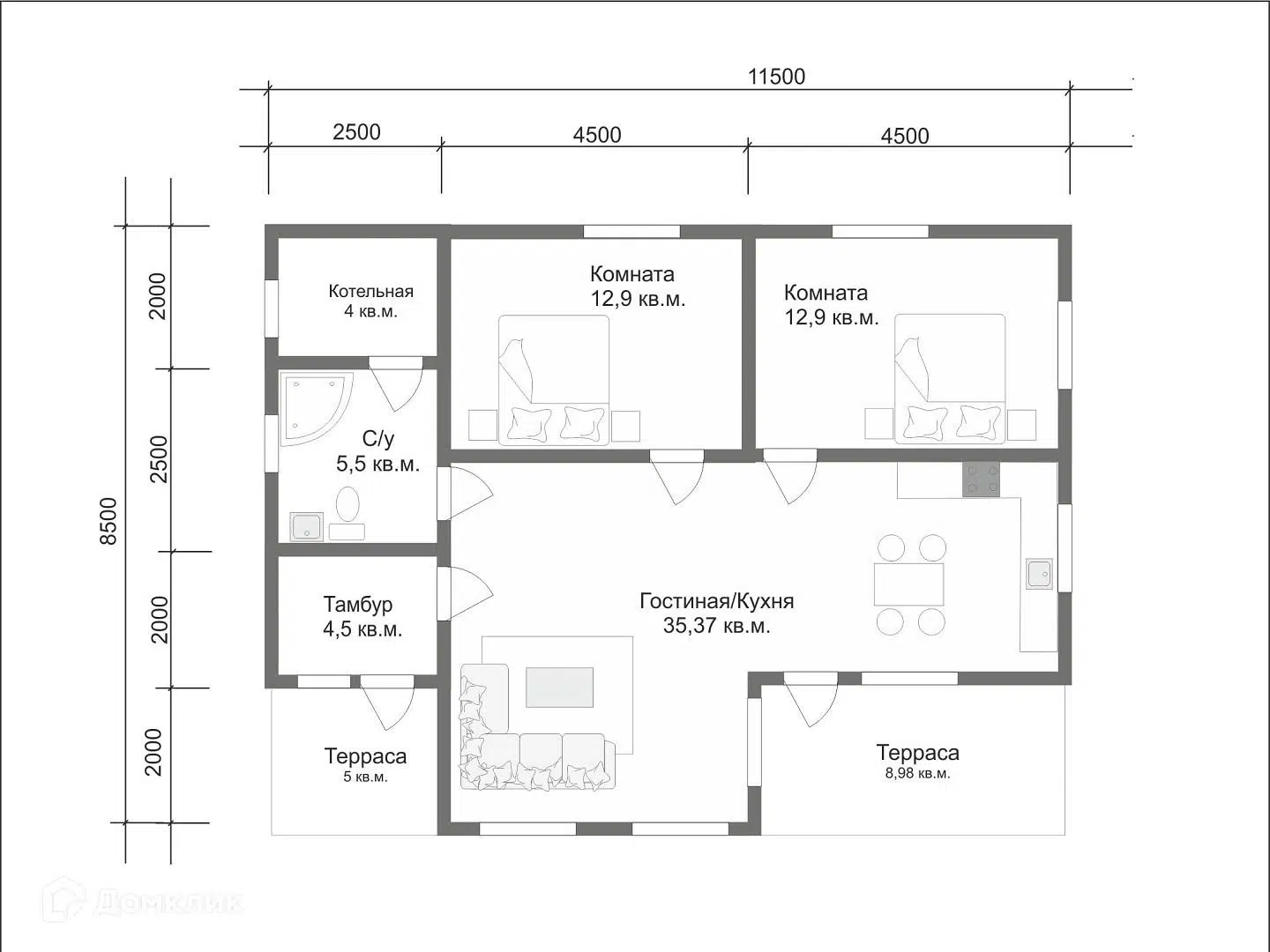
Общая площадь дома 84 м² |
Площадь застройки 98 м² |
Тип фундамента Свайно-винтовой |
Материал стен Панельно-каркасная технология |
Толщина внешних стен 219 мм |
Тип отделки фасада Имитация бруса |
Материал перегородок Деревянные |
Материал перекрытий Деревянные |
Материал кровли Профнастил |
Высота потолков от 2,5 м |
Количество этажей 1 |
Количество спален 2 |
Количество санузлов 1 |
Кухня-гостинная Да |
Окна Да |
Входная дверь Да |
Веранда Да |
Отзывы о подрядчике
10
Евгения М.
17 июля 2025
Ольга Ф.
2 июля 2025
Галина Д.
Построено со Сбером, 26 дек 25
Наталия Г.
Построено со Сбером, 25 янв 26

Михаил К.
Построено со Сбером, 5 янв 26
Артем О.
Построено со Сбером, 31 июля 24
Андрей Ж.
Построено со Сбером, 18 сен 25
Анастасия З.
Построено со Сбером, 19 мая 25
Дмитрий П.
Построено со Сбером, 21 ноя 24
Елена Ф.
23 октября 2024
Проекты подрядчика "Теплодина"
Похожие проекты от других подрядчиков
Участки под строительство дома
Подборка для вас!
Участки с подходящей площадью под строительство дома
Платформа Домклик — предоставляет возможность выбора подрядчика для строительства дома.
Выбранный вами подрядчик самостоятельно несет ответственность за качество работ. Мы рекомендуем внимательно изучать его отзывы, рейтинг и портфолио.
Финальные условия кредитования определяются при заключении договора.
Что нужно для строительства?
Какие сроки строительства?
Проконсультируете по строительству?
График работы


