Дом Эрманн
66 м²,каркасный дом,2 спальни,1 этаж
Цена от 13.11.2025
от 2 442 000 ₽
В ипотеку
🏠 Как заказать строительство дома по проекту «Дом Эрманн» в Донецке на сайте Домклик?
📚 Актуальны ли цены указанные на сайте?
⭐ Почему стоит заказать строительство дома у компании ООО МногоДом в Донецке?
💸 Можно ли заказать строительство дома «Дом Эрманн» в кредит, ипотеку, рассрочку?
Комплектации
Варианты решений от подрядчика
Базовая
от 2 442 000 ₽
Премиум
от 2 838 000 ₽
Основное
Тип фундамента
Свайный
Свайный
Срок строительства
1-3 месяца
1-3 месяца
Конструктив
Внешние стены
Каркасный дом
Каркасный дом
Вентиляция фасада
Да
Да
Материал перекрытий
Деревянные
Деревянные
Материал перегородок
Деревянные
Деревянные
Огнебиозащита
Да
Да
Утепление
Пол первого этажа
150 мм
200 мм
Внешние стены
150
200 мм
Внутренние стены
100
200 мм
Межэтажные перекрытия
150
200 мм
Кровля
150
200 мм
Утеплитель
Knauf
Knauf
Тепло-звукоизоляция
Knauf
Knauf
Пароизоляция
Изоспан
Изоспан
Кровля
Покрытие
Металлочерепица
Металлочерепица
Снегозадержатели
Да
Да
Водосточная система
Да
Да
Окна
Тип окон
Двух камерный стеклопокет
Двух камерный стеклопокет
Количество камер
2
2
Отлив
Есть
Есть
Подоконники
дерево
дерево
Отделка
Внешние стены
Имитация брусса
Сайдинг по ОСБ
Внутренние стены
Имитация брусса
Имитация бруса
Покрытие пола
Половая доска
Половая доска
Потолок
Вагонка
Вагонка
Межкомнатные двери
Дерево
Дерево
Входная дверь
Металл
Метал
Межэтажная лестница
Дерево
Дерево
О проекте
Проект дома может меняться в зависимости от ваших предпочтений
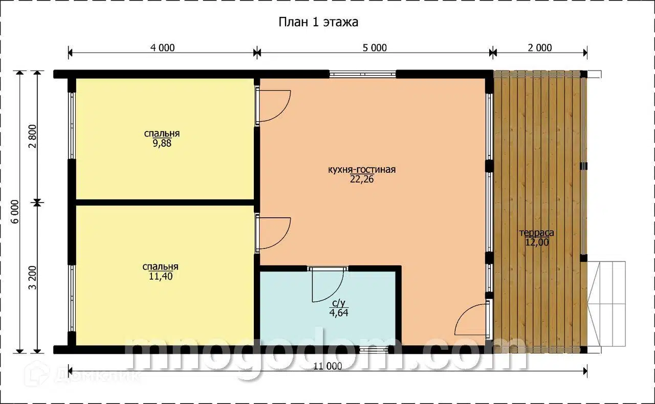
Общая площадь дома 66 м² |
Площадь застройки 54 м² |
Тип фундамента Свайный |
Материал стен Каркасный дом |
Толщина внешних стен 150 мм |
Тип отделки фасада Сайдинг |
Материал перегородок Деревянные |
Материал перекрытий Деревянные |
Материал кровли Металлочерепица |
Высота потолков от 2,7 м |
Количество этажей 1 |
Количество спален 2 |
Количество санузлов 1 |
Кухня-гостинная Да |
Окна Да |
Входная дверь Да |
Веранда Да |
Отзывы о подрядчике
17
Ольга П.
Построено со Сбером, 6 янв 26


Олег К.
18 июня 2025
Екатерина К.
17 ноября 2025
Юрий Ц.
Построено со Сбером, 17 янв 24
Иван Б.
Построено со Сбером, 28 ноя 24
Пользователь Домклик
23 августа 2025
Пользователь Домклик
23 августа 2025
Пользователь Домклик
23 августа 2025
Пользователь Домклик
24 августа 2025
Пользователь Домклик
24 августа 2025
Похожие проекты от других подрядчиков
Участки под строительство дома
Подборка для вас!
Участки с подходящей площадью под строительство дома
Платформа Домклик — предоставляет возможность выбора подрядчика для строительства дома.
Выбранный вами подрядчик самостоятельно несет ответственность за качество работ. Мы рекомендуем внимательно изучать его отзывы, рейтинг и портфолио.
Финальные условия кредитования определяются при заключении договора.
Что нужно для строительства?
Какие сроки строительства?
Проконсультируете по строительству?
График работы


