КД-013
163 м²,газобетонные блоки,3 спальни,1 этаж
Цена от 29.11.2024
от 5 190 000 ₽
В ипотеку
🏠 Как заказать строительство дома по проекту «КД-013» в Донецке на сайте Домклик?
📚 Актуальны ли цены указанные на сайте?
⭐ Почему стоит заказать строительство дома у компании ООО «СК Уютный дом-13» в Донецке?
💸 Можно ли заказать строительство дома «КД-013» в кредит, ипотеку, рассрочку?
Базовая комплектация
Цена
от 5 190 000 ₽
В ипотеку
Конструктор проекта дома
Укажите желаемые изменения в проекте и получите детальный расчет
Основное
Тип фундамента
Свайно-ростверковый
Конструктив
Внешние стены
Газобетонные блоки
Материал перекрытий
Железобетонные
Материал перегородок
Газобетонные
Кровля
Покрытие
Металлочерепица
О проекте
Проект дома может меняться в зависимости от ваших предпочтений
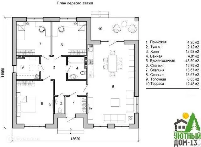
Общая площадь дома 163 м² |
Площадь застройки 150 м² |
Тип фундамента Свайно-ростверковый |
Материал стен Газобетонные блоки |
Толщина внешних стен 300 мм |
Материал перегородок Газобетонные |
Материал перекрытий Железобетонные |
Материал кровли Металлочерепица |
Высота потолков от 2,8 м |
Количество этажей 1 |
Количество спален 3 |
Количество санузлов 1 |
Кухня-гостинная Да |
Окна Да |
Входная дверь Да |
Веранда Да |
Отзывы о подрядчике
19
Екатерина К.
Построено со Сбером, 19 янв 26

Виталий Х.
Построено со Сбером, 23 дек 25

Рияна Я.
Построено со Сбером, 10 сен 25
Татьяна Н.
Построено со Сбером, 14 окт 24
Ирина П.
Построено со Сбером, 26 янв 26

Камиля Р.
Построено со Сбером, 4 окт 24
Римма М.
Построено со Сбером, 6 июня 24
Виталий Е.
Построено со Сбером, 8 июля 25
Виталий З.
Построено со Сбером, 19 июля 24
Владислав Ю.
Построено со Сбером, 21 дек 23
Проекты подрядчика "ООО "СК Уютный дом-13""
Похожие проекты от других подрядчиков
Участки под строительство дома
Подборка для вас!
Участки с подходящей площадью под строительство дома
Платформа Домклик — предоставляет возможность выбора подрядчика для строительства дома.
Выбранный вами подрядчик самостоятельно несет ответственность за качество работ. Мы рекомендуем внимательно изучать его отзывы, рейтинг и портфолио.
Финальные условия кредитования определяются при заключении договора.
Что нужно для строительства?
Какие сроки строительства?
Проконсультируете по строительству?
График работы


