Модульный дом "Алтай"
62,1 м²,каркасный дом,2 спальни,1 этаж
Цена от 27.08.2025
от 3 500 000 ₽
В ипотеку
🏠 Как заказать строительство дома по проекту «Модульный дом "Алтай"» в Донецке на сайте Домклик?
📚 Актуальны ли цены указанные на сайте?
💸 Можно ли заказать строительство дома «Модульный дом "Алтай"» в кредит, ипотеку, рассрочку?
Выставочные дома от «Стройкаркас»
Модульный дом "Барнаул"
от 3,5 млн ₽
Россия, Челябинск, Черкасская улица, 15
Базовая комплектация
Цена
от 3 500 000 ₽
В ипотеку
Конструктор проекта дома
Укажите желаемые изменения в проекте и получите детальный расчет
Основное
Тип фундамента
Свайно-винтовой
Срок строительства
1-3 месяца
Конструктив
Внешние стены
Модульный дом
Материал перекрытий
Деревянные
Материал перегородок
Деревянные
Огнебиозащита
да
Утепление
Пол первого этажа
150
Внешние стены
150
Внутренние стены
нет
Межэтажные перекрытия
нет
Кровля
150
Утеплитель
knayf insulation
Кровля
Покрытие
Профнастил
О проекте
Проект дома может меняться в зависимости от ваших предпочтений
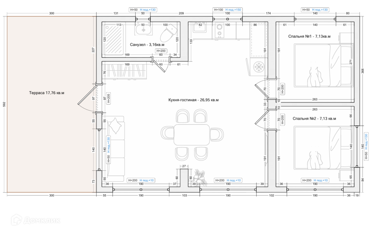
Общая площадь дома 62,1 м² |
Площадь застройки 72 м² |
Тип фундамента Свайно-винтовой |
Материал стен Каркасный дом |
Толщина внешних стен 220 мм |
Тип отделки фасада Деревянная отделка |
Материал перегородок Деревянные |
Материал перекрытий Деревянные |
Материал кровли Профнастил |
Высота потолков от 2,8 м |
Количество этажей 1 |
Количество спален 2 |
Количество санузлов 1 |
Кухня-гостинная Да |
Окна Да |
Входная дверь Да |
Отзывы о подрядчике
16
Евгений В.
14 января 2026
Пользователь Домклик
16 января 2026
Пользователь Домклик
27 февраля 2026
Дарья Д.
27 ноября 2025
Наталья Ч.
17 февраля 2026
Екатерина С.
14 января 2026
Пользователь Домклик
27 февраля 2026
Максим А.
14 января 2026
Диана В.
27 февраля 2026
Пользователь Домклик
27 февраля 2026
Проекты подрядчика "Стройкаркас"
Похожие проекты от других подрядчиков
Участки под строительство дома
Подборка для вас!
Участки с подходящей площадью под строительство дома
Платформа Домклик — предоставляет возможность выбора подрядчика для строительства дома.
Выбранный вами подрядчик самостоятельно несет ответственность за качество работ. Мы рекомендуем внимательно изучать его отзывы, рейтинг и портфолио.
Финальные условия кредитования определяются при заключении договора.
ИНН: 7451449105
Что нужно для строительства?
Какие сроки строительства?
Проконсультируете по строительству?
График работы








