Новиков
83,6 м²,каркасный дом,2 спальни,1 этаж
Цена от 11.03.2026
от 4 461 000 ₽
В ипотеку
🏠 Как заказать строительство дома по проекту «Новиков» в Донецке на сайте Домклик?
📚 Актуальны ли цены указанные на сайте?
⭐ Почему стоит заказать строительство дома у компании FamilyDom в Донецке?
💸 Можно ли заказать строительство дома «Новиков» в кредит, ипотеку, рассрочку?
Выставочные дома от «FamilyDom»
Выборгский
от 7,7 млн ₽
Россия, Санкт-Петербург, Парголово, Выборгское шоссе, 212
Базовая комплектация
Цена
от 4 461 000 ₽
В ипотеку
Конструктор проекта дома
Укажите желаемые изменения в проекте и получите детальный расчет
Основное
Тип фундамента
Железобетонные сваи
Срок строительства
1-3 месяца
Конструктив
Внешние стены
Каркасный дом
Вентиляция фасада
Да
Материал перекрытий
Деревянные
Материал перегородок
Деревянные
Огнебиозащита
Да
Утепление
Пол первого этажа
150 мм
Внешние стены
150 мм
Внутренние стены
100 мм
Межэтажные перекрытия
150 мм
Кровля
150 мм
Утеплитель
Плиты "Knauf"
Тепло-звукоизоляция
Плиты "Knauf"
Пароизоляция
"Brontek D"
Кровля
Покрытие
Металлочерепица
Снегозадержатели
Нет
Водосточная система
Да
Окна
Тип окон
ПВХ
Количество камер
2
Отлив
Есть
Подоконники
пластик
Отделка
Внешние стены
Имитация бруса
Внутренние стены
Вагонка
Покрытие пола
Квик Дек
Потолок
Вагонка
Межкомнатные двери
МДФ с фурнитурой
Входная дверь
Металлическая с терморазрывом
Межэтажная лестница
Нет
О проекте
Проект дома может меняться в зависимости от ваших предпочтений
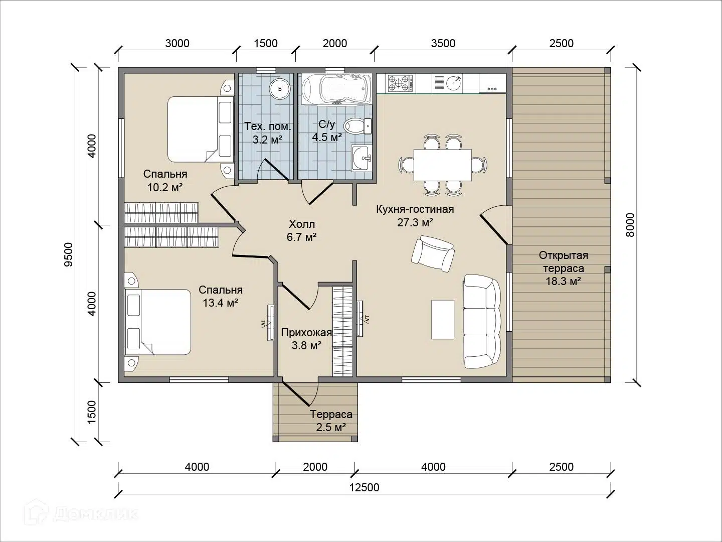
Общая площадь дома 83,6 м² |
Площадь застройки 103 м² |
Тип фундамента Железобетонные сваи |
Материал стен Каркасный дом |
Толщина внешних стен 241 мм |
Тип отделки фасада Имитация бруса |
Материал перегородок Деревянные |
Материал перекрытий Деревянные |
Материал кровли Металлочерепица |
Высота потолков от 2,7 м |
Количество этажей 1 |
Количество спален 2 |
Количество санузлов 1 |
Кухня-гостинная Да |
Окна Да |
Входная дверь Да |
Веранда Да |
Отзывы о подрядчике
4
Никита П.
Построено со Сбером, 20 ноя 23
Алексей Щ.
Построено со Сбером, 20 ноя 23
Олег П.
Построено со Сбером, 20 ноя 23
Елена У.
Построено со Сбером, 20 ноя 23
Проекты подрядчика "FamilyDom"
Похожие проекты от других подрядчиков
Участки под строительство дома
Подборка для вас!
Участки с подходящей площадью под строительство дома
Платформа Домклик — предоставляет возможность выбора подрядчика для строительства дома.
Выбранный вами подрядчик самостоятельно несет ответственность за качество работ. Мы рекомендуем внимательно изучать его отзывы, рейтинг и портфолио.
Финальные условия кредитования определяются при заключении договора.
Что нужно для строительства?
Какие сроки строительства?
Проконсультируете по строительству?
График работы





