ОС-22-02
106 м²,бетонные блоки,2 спальни,1 этаж
Цена от 27.08.2025
от 6 490 000 ₽
В ипотеку
🏠 Как заказать строительство дома по проекту «ОС-22-02» в Донецке на сайте Домклик?
📚 Актуальны ли цены указанные на сайте?
⭐ Почему стоит заказать строительство дома у компании СК «ОСНОВАСИТИ» в Донецке?
💸 Можно ли заказать строительство дома «ОС-22-02» в кредит, ипотеку, рассрочку?
Базовая комплектация
Цена
от 6 490 000 ₽
В ипотеку
Основное
Тип фундамента
Монолитный
Срок строительства
3-6 месяцев
Конструктив
Внешние стены
Бетонные блоки
Материал перекрытий
Деревянные
Материал перегородок
нет значения
Кровля
Покрытие
Металлочерепица
О проекте
Проект дома может меняться в зависимости от ваших предпочтений
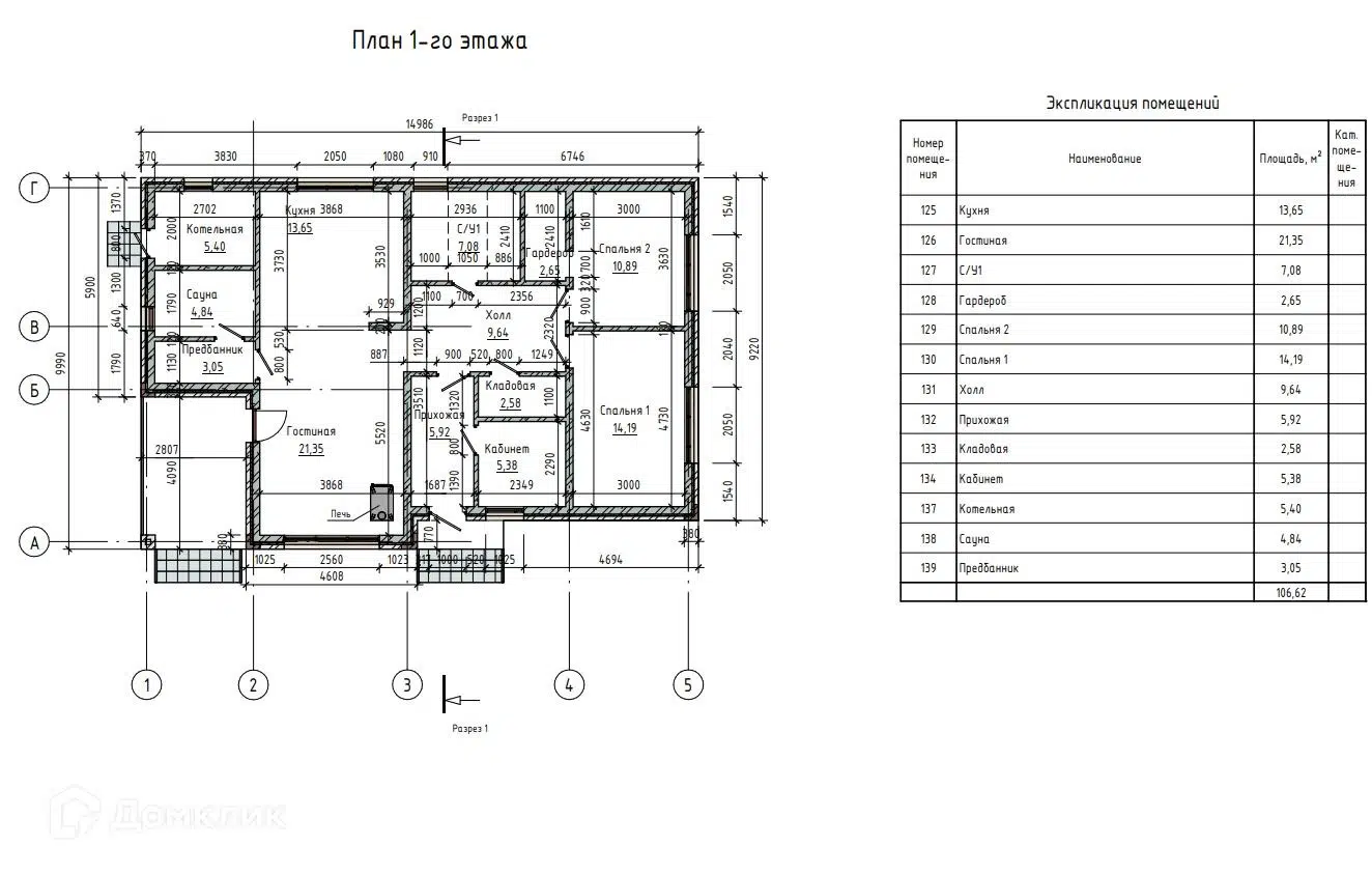
Общая площадь дома 106 м² |
Площадь застройки 128 м² |
Тип фундамента Монолитный |
Материал стен Бетонные блоки |
Толщина внешних стен 400 мм |
Тип отделки фасада Кирпичная кладка |
Материал перекрытий Деревянные |
Материал кровли Металлочерепица |
Высота потолков от 2,9 м |
Количество этажей 1 |
Количество спален 2 |
Количество санузлов 1 |
Кухня-гостинная Да |
Окна Да |
Входная дверь Да |
Веранда Да |
Отзывы о подрядчике
10
Ольга С.
Построено со Сбером, 5 июня 24
Григорий А.
Построено со Сбером, 6 дек 23
Екатерина М.
Построено со Сбером, 13 июня 24
Юрий С.
Построено со Сбером, 5 июня 24
Роман Т.
Построено со Сбером, 25 янв 24
Ольга М.
Построено со Сбером, 6 дек 23
Андрей Г.
Построено со Сбером, 6 дек 23
Анастасия И.
Построено со Сбером, 25 янв 24
Александр В.
Построено со Сбером, 25 янв 24
Анна А.
Построено со Сбером, 12 мар 25
Похожие проекты от других подрядчиков
Участки под строительство дома
Подборка для вас!
Участки с подходящей площадью под строительство дома
Платформа Домклик — предоставляет возможность выбора подрядчика для строительства дома.
Выбранный вами подрядчик самостоятельно несет ответственность за качество работ. Мы рекомендуем внимательно изучать его отзывы, рейтинг и портфолио.
Финальные условия кредитования определяются при заключении договора.
Что нужно для строительства?
Какие сроки строительства?
Проконсультируете по строительству?
График работы

