Проект №349
93 м²,газобетонные блоки,3 спальни,1 этаж
Цена от 08.04.2026
7 100 000 ₽
В ипотеку
🏠 Как заказать строительство дома по проекту «Проект №349» в Донецке на сайте Домклик?
📚 Актуальны ли цены указанные на сайте?
⭐ Почему стоит заказать строительство дома у компании СПЕЦ ЗАСТРОЙЩИК в Донецке?
💸 Можно ли заказать строительство дома «Проект №349» в кредит, ипотеку, рассрочку?
Комплектации
Варианты решений от подрядчика
Конструктор проекта дома
Укажите желаемые изменения в проекте и получите детальный расчет
Тёплый контур
7 100 000 ₽
Чистовая отделка
8 200 000 ₽
Под ключ
10 900 000 ₽
Основное
Тип фундамента
Плитный
Плитный
Плитный
Срок строительства
3-6 месяцев
3-6 месяцев
6-12 месяцев
Конструктив
Внешние стены
Газобетонные блоки
Газобетонные блоки
Газобетонные блоки
Вентиляция фасада
Естественная
Естественная
Естественная
Материал перекрытий
Деревянные
Деревянные
Деревянные
Материал перегородок
Газобетонные
Газобетонные
Газобетонные
Огнебиозащита
Да
Да
Да
Утепление
Пол первого этажа
—
—
100
Внешние стены
—
50
50
Кровля
150
150
150
Утеплитель
Экструдированный Пенополистирол (ЭППС)
Экструдированный Пенополистирол (ЭППС)
Экструдированный Пенополистирол (ЭППС)
Пароизоляция
Пленочная пароизоляция
Пленочная пароизоляция
Пленочная пароизоляция
Кровля
Покрытие
Металлочерепица
Металлочерепица
Металлочерепица
Снегозадержатели
Нет
Нет
Нет
Водосточная система
Да
Да
Да
Окна
Тип окон
Пластиковые
Пластиковые
Пластиковые
Количество камер
2
2
2
Отлив
Есть
Есть
Есть
Подоконники
пластик
пластик
пластик
Отделка
Внешние стены
не заполнено
Фасадная штукатурка
Фасадная штукатурка
Внутренние стены
Отсутствует
Отсутствует
Штукатурка стен
Покрытие пола
Отсутствует
Отсутствует
Отсутствует
Потолок
Деревянные
Деревянные
Деревянные
Межкомнатные двери
Нет
Нет
Нет
Входная дверь
Металлическая
Металлическая
Металлическая
Инженерия
Электроснабжение (розетки, выключатели, автоматика)
розетки
розетки
розетки, выключатели, автоматика
Водоснабжение (разводка хл/гр воды, фильтр грубой очистки, нагреватель)
разводка
разводка
разводка, водонагреватель
Отопление (разводка, радиаторы, насосы, котёл)
—
—
разводка, радиатор, насос, котел
Вентиляция
Естественная
Естественная
Естественная
О проекте
Проект дома может меняться в зависимости от ваших предпочтений
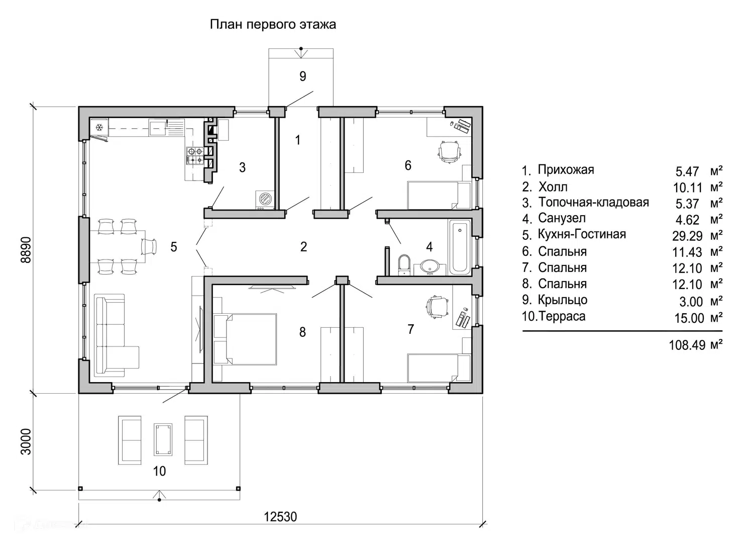
Общая площадь дома 93 м² |
Площадь застройки 111 м² |
Тип фундамента Плитный |
Материал стен Газобетонные блоки |
Толщина внешних стен 530 мм |
Тип отделки фасада Фасадная штукатурка |
Материал перегородок Газобетонные |
Материал перекрытий Деревянные |
Материал кровли Металлочерепица |
Ширина дома от 9 м |
Длина дома от 13 м |
Высота потолков от 2,8 м |
Количество этажей 1 |
Количество спален 3 |
Количество санузлов 1 |
Кухня-гостинная Да |
Окна Да |
Входная дверь Да |
Отзывы о подрядчике
5
Екатерина К.
27 марта 2026

Иван С.
Построено со Сбером, 22 ноя 23
Елена З.
Построено со Сбером, 22 ноя 23
Ольга Д.
Построено со Сбером, 22 ноя 23
Ирина Л.
Построено со Сбером, 22 ноя 23
Проекты подрядчика "СПЕЦ ЗАСТРОЙЩИК"
Похожие проекты от других подрядчиков
Участки под строительство дома
Подборка для вас!
Участки с подходящей площадью под строительство дома
Платформа Домклик — предоставляет возможность выбора подрядчика для строительства дома.
Выбранный вами подрядчик самостоятельно несет ответственность за качество работ. Мы рекомендуем внимательно изучать его отзывы, рейтинг и портфолио.
Финальные условия кредитования определяются при заключении договора.
Что нужно для строительства?
Какие сроки строительства?
Проконсультируете по строительству?



