Уют 4, 83.47 (79.67)
79,67 м²,газобетонные блоки,3 спальни,1 этаж
Цена от 23.03.2026
4 650 000 ₽
В ипотеку
🏠 Как заказать строительство дома по проекту «Уют 4, 83.47 (79.67)» в Донецке на сайте Домклик?
📚 Актуальны ли цены указанные на сайте?
⭐ Почему стоит заказать строительство дома у компании СК НА ВЕКА в Донецке?
💸 Можно ли заказать строительство дома «Уют 4, 83.47 (79.67)» в кредит, ипотеку, рассрочку?
Тёплый контур
Цена
4 650 000 ₽
В ипотеку
Конструктор проекта дома
Укажите желаемые изменения в проекте и получите детальный расчет
Основное
Тип фундамента
Ленточный
Срок строительства
3-6 месяцев
Конструктив
Внешние стены
Газобетонные блоки
Вентиляция фасада
Естественная
Материал перекрытий
Деревянные
Материал перегородок
Кирпичные
Утепление
Кровля
45
Кровля
Покрытие
Металлочерепица
Окна
Тип окон
Пластиковые
Количество камер
2
Отлив
Есть
Подоконники
пластик
Отделка
Внешние стены
Кирпичная кладка
Внутренние стены
Отсутствует
Покрытие пола
Отсутствует
Инженерия
Электроснабжение (розетки, выключатели, автоматика)
автоматика
Водоснабжение (разводка хл/гр воды, фильтр грубой очистки, нагреватель)
разводка
О проекте
Проект дома может меняться в зависимости от ваших предпочтений
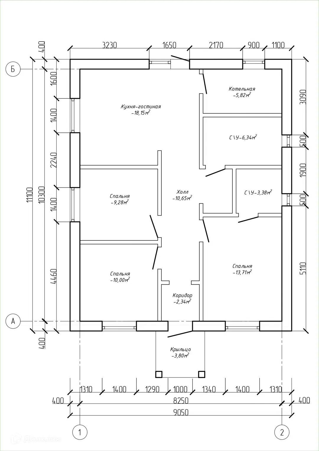
Общая площадь дома 79,67 м² |
Площадь застройки 104 м² |
Тип фундамента Ленточный |
Материал стен Газобетонные блоки |
Толщина внешних стен 400 мм |
Тип отделки фасада Кирпичная кладка |
Материал перегородок Кирпичные |
Материал перекрытий Деревянные |
Материал кровли Металлочерепица |
Высота потолков от 3 м |
Количество этажей 1 |
Количество спален 3 |
Количество санузлов 2 |
Кухня-гостинная Да |
Окна Да |
Входная дверь Да |
Отзывы о подрядчике
12
Владимир К.
Построено со Сбером, 28 авг 24
Ангелина Г.
Построено со Сбером, 24 мар 26
Валерия Д.
Построено со Сбером, 15 сен 25
Максим Т.
Построено со Сбером, 20 янв 26
Шерозжон У.
Построено со Сбером, 27 мар 25
Евгения Д.
Построено со Сбером, 16 сен 25
Анна Б.
Построено со Сбером, 13 мая 25
Евгения П.
Построено со Сбером, 6 ноя 24
Владимир П.
30 сентября 2025
Анастасия С.
Построено со Сбером, 18 сен 25
Проекты подрядчика "СК НА ВЕКА"
Похожие проекты от других подрядчиков
Участки под строительство дома
Подборка для вас!
Участки с подходящей площадью под строительство дома
Платформа Домклик — предоставляет возможность выбора подрядчика для строительства дома.
Выбранный вами подрядчик самостоятельно несет ответственность за качество работ. Мы рекомендуем внимательно изучать его отзывы, рейтинг и портфолио.
Финальные условия кредитования определяются при заключении договора.
Что нужно для строительства?
Какие сроки строительства?
Проконсультируете по строительству?
График работы


