Барнхаус 114
114 м²,каркасный дом,3 спальни,2 этажа
Цена от 19.01.2026
от 4 963 000 ₽
В ипотеку
🏠 Как заказать строительство дома по проекту «Барнхаус 114» в Донецке на сайте Домклик?
📚 Актуальны ли цены указанные на сайте?
⭐ Почему стоит заказать строительство дома у компании Авангард Строй в Донецке?
💸 Можно ли заказать строительство дома «Барнхаус 114» в кредит, ипотеку, рассрочку?
Оптимальная комплектация
Цена
от 4 963 000 ₽
В ипотеку
Конструктор проекта дома
Укажите желаемые изменения в проекте и получите детальный расчет
Основное
Тип фундамента
Железобетонные сваи
Срок строительства
7-30 дней
Конструктив
Внешние стены
Панельно-каркасная технология
Материал перекрытий
Деревянные
Материал перегородок
Деревянные
Утепление
Пол первого этажа
200
Внешние стены
150
Внутренние стены
Изовер М37 (или аналог)
Межэтажные перекрытия
150
Кровля
200
Утеплитель
Изовер М37 (или аналог)
Пароизоляция
Мембранная пленка
Кровля
Покрытие
Профнастил
Окна
Тип окон
Окна по проекту БЕЛЫЕ. Пр-во Schtandart, профиль Rehau 70 профиль, 2х камерный стеклопакет; Пр-во ЭкоОкна, профиль Veko, 70 профиль, 2х камерный стеклопакет.
Количество камер
2
Отделка
Внешние стены
Имитация бруса
Покрытие пола
плиты ОСБ, 22мм.
Входная дверь
Утепленная с терморазрывом ДC Bravo Thermo-2 Лайн.
Межэтажная лестница
по проекту
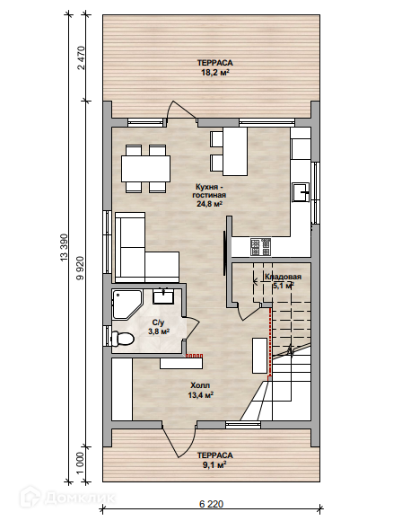
О проекте
Проект дома может меняться в зависимости от ваших предпочтений
Общая площадь дома 114 м² |
Площадь застройки 83 м² |
Тип фундамента Железобетонные сваи |
Материал стен Каркасный дом |
Толщина внешних стен 280 мм |
Тип отделки фасада Имитация бруса |
Материал перегородок Деревянные |
Материал перекрытий Деревянные |
Материал кровли Профнастил |
Высота потолков от 2,5 м |
Количество этажей 2 |
Количество спален 3 |
Количество санузлов 1 |
Кухня-гостинная Да |
Окна Да |
Входная дверь Да |
Отзывы о подрядчике
13
Полина З.
16 июня 2025
Сергей З.
Построено со Сбером, 12 янв 24
Ольга П.
Построено со Сбером, 12 янв 24
Михаил С.
Построено со Сбером, 22 дек 23
Евгений Д.
Построено со Сбером, 12 янв 24
Сергей К.
Построено со Сбером, 21 дек 23
Наталия С.
Построено со Сбером, 22 дек 23
Маргарита Р.
Построено со Сбером, 21 дек 23
Ольга М.
Построено со Сбером, 12 янв 24
Сергей С.
Построено со Сбером, 21 дек 23
Проекты подрядчика "Авангард Строй"
Похожие проекты от других подрядчиков
Участки под строительство дома
Подборка для вас!
Участки с подходящей площадью под строительство дома
Платформа Домклик — предоставляет возможность выбора подрядчика для строительства дома.
Выбранный вами подрядчик самостоятельно несет ответственность за качество работ. Мы рекомендуем внимательно изучать его отзывы, рейтинг и портфолио.
Финальные условия кредитования определяются при заключении договора.
Что нужно для строительства?
Какие сроки строительства?
Проконсультируете по строительству?
График работы


