Премьер 4
154 м²,каркасный дом,4 спальни,2 этажа
Цена от 10.12.2025
от 8 044 000 ₽
В ипотеку
🏠 Как заказать строительство дома по проекту «Премьер 4» в Донецке на сайте Домклик?
📚 Актуальны ли цены указанные на сайте?
⭐ Почему стоит заказать строительство дома у компании Авангард Строй в Донецке?
💸 Можно ли заказать строительство дома «Премьер 4» в кредит, ипотеку, рассрочку?
Премиум комплектация
Цена
от 8 044 000 ₽
В ипотеку
Основное
Тип фундамента
Железобетонные сваи
Срок строительства
1-3 месяца
Конструктив
Внешние стены
Панельно-каркасная технология
Материал перекрытий
Деревянные
Материал перегородок
Деревянные
Утепление
Пол первого этажа
200 мм
Внешние стены
150 мм
Кровля
200 мм
Утеплитель
Изовер М37 (или аналог)
Пароизоляция
Мембранная пленка
Кровля
Покрытие
Профнастил
Окна
Тип окон
Пластиковые
Отделка
Внешние стены
Имитация бруса
Покрытие пола
плиты ОСБ, 22мм.
Входная дверь
Металлическая
Межэтажная лестница
По проекту
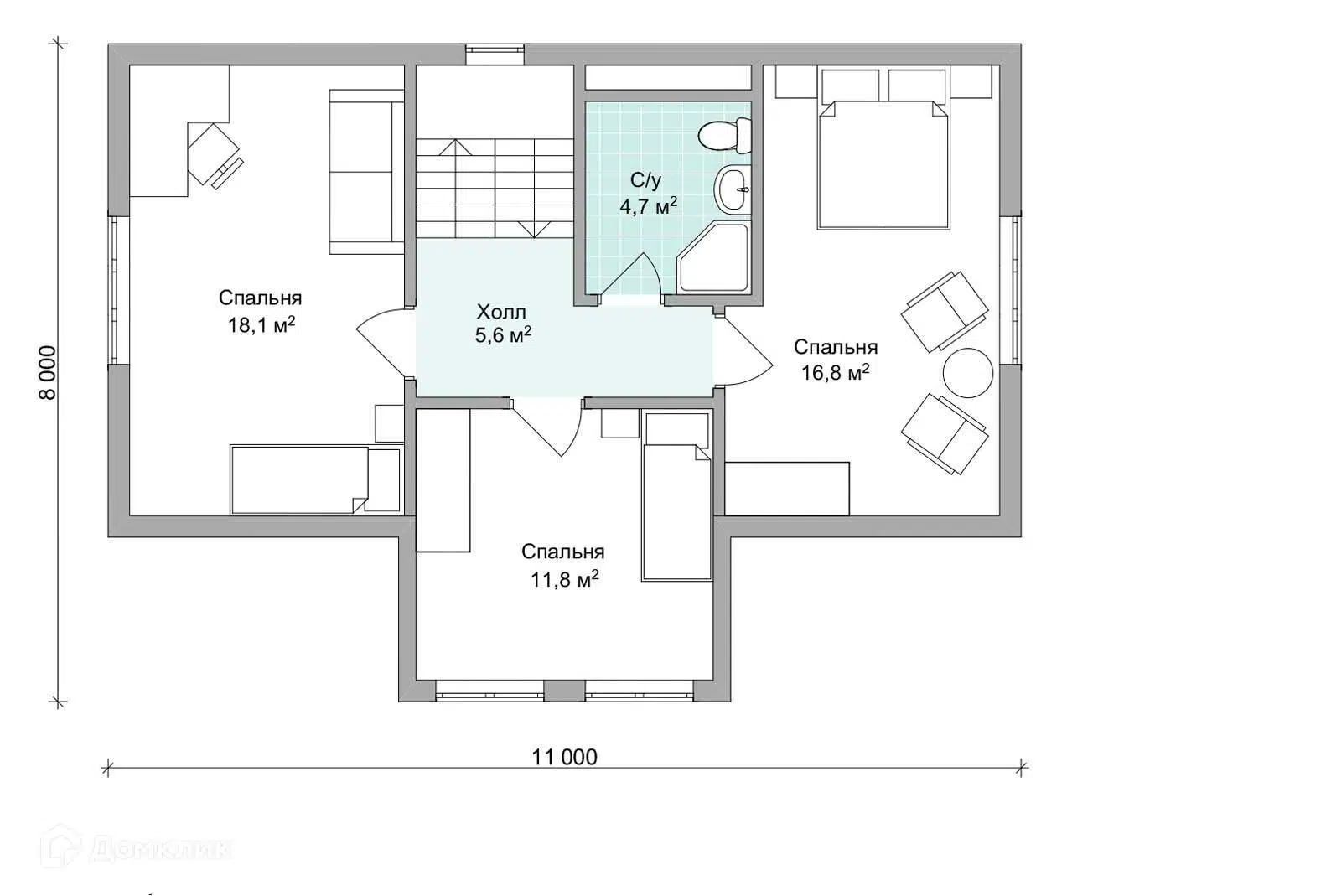
О проекте
Проект дома может меняться в зависимости от ваших предпочтений
Общая площадь дома 154 м² |
Площадь застройки 109,6 м² |
Тип фундамента Железобетонные сваи |
Материал стен Каркасный дом |
Толщина внешних стен 240 мм |
Тип отделки фасада Имитация бруса |
Материал перегородок Деревянные |
Материал перекрытий Деревянные |
Материал кровли Профнастил |
Высота потолков от 2,7 м |
Количество этажей 2 |
Количество спален 4 |
Количество санузлов 2 |
Кухня-гостинная Да |
Окна Да |
Входная дверь Да |
Веранда Да |
Отзывы о подрядчике
13
Сергей З.
Построено со Сбером, 12 янв 24
Михаил С.
Построено со Сбером, 22 дек 23
Сергей С.
Построено со Сбером, 21 дек 23
Наталия С.
Построено со Сбером, 22 дек 23
Полина З.
16 июня 2025
Алексей Ш.
Построено со Сбером, 21 дек 23
Ольга П.
Построено со Сбером, 12 янв 24
Александр З.
Построено со Сбером, 21 дек 23
Маргарита Р.
Построено со Сбером, 21 дек 23
Евгений Д.
Построено со Сбером, 12 янв 24
Похожие проекты от других подрядчиков
Участки под строительство дома
Подборка для вас!
Участки с подходящей площадью под строительство дома
Платформа Домклик — предоставляет возможность выбора подрядчика для строительства дома.
Выбранный вами подрядчик самостоятельно несет ответственность за качество работ. Мы рекомендуем внимательно изучать его отзывы, рейтинг и портфолио.
Финальные условия кредитования определяются при заключении договора.
Что нужно для строительства?
Какие сроки строительства?
Проконсультируете по строительству?
График работы


