Одноэтажный Райт ND 97 Brown
97,05 м²,керамзитобетонные блоки,3 спальни,1 этаж
Цена от 30.10.2025
от 6 690 000 ₽
В ипотеку
🏠 Как заказать строительство дома по проекту «Одноэтажный Райт ND 97 Brown» в Донецке на сайте Домклик?
📚 Актуальны ли цены указанные на сайте?
💸 Можно ли заказать строительство дома «Одноэтажный Райт ND 97 Brown» в кредит, ипотеку, рассрочку?
Базовая комплектация
Цена
от 6 690 000 ₽
В ипотеку
Конструктор проекта дома
Укажите желаемые изменения в проекте и получите детальный расчет
Основное
Тип фундамента
Свайно-ростверковый
Срок строительства
6-12 месяцев
Конструктив
Внешние стены
Керамзитобетонные блоки
Материал перекрытий
Деревянные
Материал перегородок
нет значения
Утепление
Внешние стены
+
Межэтажные перекрытия
+
Кровля
+
Утеплитель
+
Кровля
Покрытие
Металлочерепица
Снегозадержатели
+
Водосточная система
+
О проекте
Проект дома может меняться в зависимости от ваших предпочтений
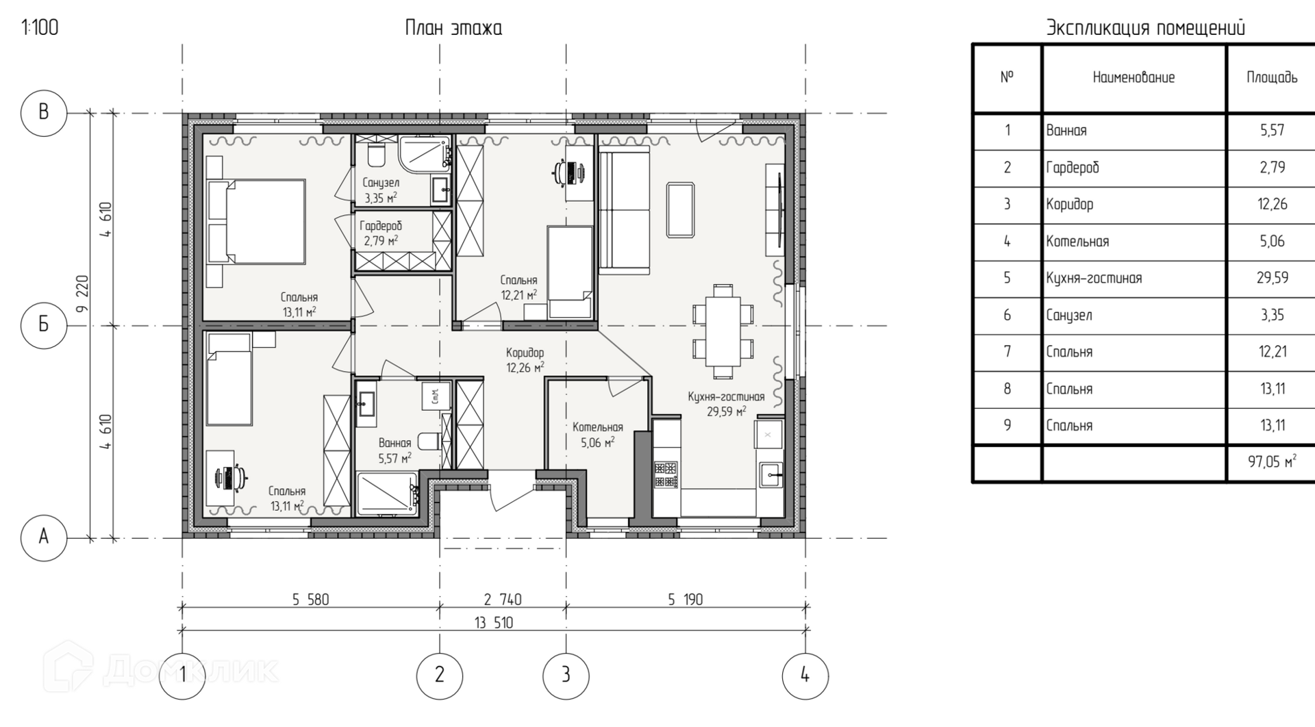
Общая площадь дома 97,05 м² |
Площадь застройки 125 м² |
Тип фундамента Свайно-ростверковый |
Материал стен Керамзитобетонные блоки |
Толщина внешних стен 420 мм |
Тип отделки фасада Кирпичная кладка |
Материал перекрытий Деревянные |
Материал кровли Металлочерепица |
Высота потолков от 2,88 м |
Количество этажей 1 |
Количество спален 3 |
Количество санузлов 2 |
Кухня-гостинная Да |
Окна Да |
Входная дверь Да |
Отзывы о подрядчике
3
Пользователь Домклик
6 апреля 2025
Илья К.
6 декабря 2025
Майя Ш.
6 апреля 2025
Проекты подрядчика "Nest Development"
Похожие проекты от других подрядчиков
Участки под строительство дома
Подборка для вас!
Участки с подходящей площадью под строительство дома
Платформа Домклик — предоставляет возможность выбора подрядчика для строительства дома.
Выбранный вами подрядчик самостоятельно несет ответственность за качество работ. Мы рекомендуем внимательно изучать его отзывы, рейтинг и портфолио.
Финальные условия кредитования определяются при заключении договора.
ИНН: 5261049472
Что нужно для строительства?
Какие сроки строительства?
Проконсультируете по строительству?

