Классика
74 м²,газобетонные блоки,3 спальни,1 этаж
Цена от 13.11.2025
от 4 800 000 ₽
В ипотеку
🏠 Как заказать строительство дома по проекту «Классика» в Донецке на сайте Домклик?
📚 Актуальны ли цены указанные на сайте?
⭐ Почему стоит заказать строительство дома у компании Алива Строй в Донецке?
💸 Можно ли заказать строительство дома «Классика» в кредит, ипотеку, рассрочку?
Базовая комплектация
Цена
от 4 800 000 ₽
В ипотеку
Конструктор проекта дома
Укажите желаемые изменения в проекте и получите детальный расчет
Основное
Тип фундамента
Ленточный
Срок строительства
6-12 месяцев
Конструктив
Внешние стены
Газобетонные блоки
Материал перекрытий
Деревянные
Материал перегородок
Кирпичные
Утепление
Пол первого этажа
Пенаплекс
Внутренние стены
Есть
Кровля
Покрытие
Металлочерепица
Снегозадержатели
Да
Водосточная система
Да
Окна
Тип окон
Двухкамерный стеклопакет
Количество камер
5
Отделка
Внешние стены
Керамический кирпич
Внутренние стены
Забутовочный кирпич
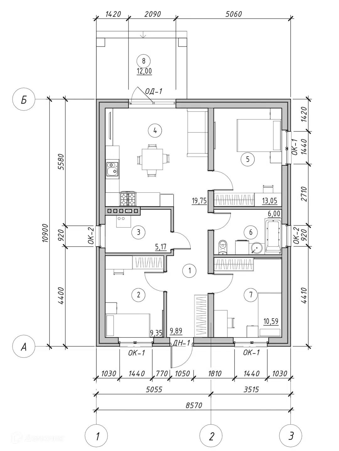
О проекте
Проект дома может меняться в зависимости от ваших предпочтений
Общая площадь дома 74 м² |
Площадь застройки 93 м² |
Тип фундамента Ленточный |
Материал стен Газобетонные блоки |
Толщина внешних стен 400 мм |
Тип отделки фасада Кирпичная кладка |
Материал перегородок Кирпичные |
Материал перекрытий Деревянные |
Материал кровли Металлочерепица |
Высота потолков от 3 м |
Количество этажей 1 |
Количество спален 3 |
Количество санузлов 1 |
Кухня-гостинная Да |
Окна Да |
Входная дверь Да |
Отзывы о подрядчике
6
Кристина К.
3 сентября 2025
Дарья М.
Построено со Сбером, 26 ноя 25
Елизавета О.
28 октября 2025
Алиса Х.
3 сентября 2025
Сергей М.
Построено со Сбером, 21 ноя 25
Евгений Д.
8 апреля 2026
Проекты подрядчика "Алива Строй"
Похожие проекты от других подрядчиков
Участки под строительство дома
Подборка для вас!
Участки с подходящей площадью под строительство дома
Платформа Домклик — предоставляет возможность выбора подрядчика для строительства дома.
Выбранный вами подрядчик самостоятельно несет ответственность за качество работ. Мы рекомендуем внимательно изучать его отзывы, рейтинг и портфолио.
Финальные условия кредитования определяются при заключении договора.
Что нужно для строительства?
Какие сроки строительства?
Проконсультируете по строительству?
График работы



