Проект №100
172 м²,керамические блоки,4 спальни,2 этажа
Цена от 10.03.2026
9 461 650 ₽
В ипотеку
🏠 Как заказать строительство дома по проекту «Проект №100» в Донецке на сайте Домклик?
📚 Актуальны ли цены указанные на сайте?
⭐ Почему стоит заказать строительство дома у компании Новация в Донецке?
💸 Можно ли заказать строительство дома «Проект №100» в кредит, ипотеку, рассрочку?
Тёплый контур
Цена
9 461 650 ₽
В ипотеку
Конструктор проекта дома
Укажите желаемые изменения в проекте и получите детальный расчет
Основное
Тип фундамента
Свайно-ростверковый
Срок строительства
3-6 месяцев
Конструктив
Внешние стены
Керамические блоки
Вентиляция фасада
Естественная
Материал перекрытий
Железобетонные
Материал перегородок
Кирпичные
Огнебиозащита
Да
Утепление
Пол первого этажа
150
Кровля
200
Утеплитель
Минеральная вата
Пароизоляция
Пароизоляционные мембраны
Кровля
Покрытие
Металлочерепица
Снегозадержатели
Да
Водосточная система
Да
Окна
Тип окон
Пластиковые
Количество камер
3
Отлив
Есть
Отделка
Внешние стены
Кирпичная кладка
Внутренние стены
Отсутствует
Покрытие пола
Отсутствует
Потолок
Деревянные
Межкомнатные двери
Нет
Входная дверь
Металлическая
Межэтажная лестница
Да
Инженерия
Электроснабжение (розетки, выключатели, автоматика)
автоматика
Водоснабжение (разводка хл/гр воды, фильтр грубой очистки, нагреватель)
разводка
Вентиляция
Приточно-вытяжная
Прочее
Гараж
Нет
Экскурсии на объекты
Есть
Дома на выставках
Есть
Работа под IP-камерами
Есть
Сигнализация
Нет
О проекте
Проект дома может меняться в зависимости от ваших предпочтений
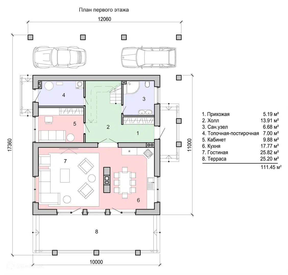
Общая площадь дома 172 м² |
Площадь застройки 220 м² |
Тип фундамента Свайно-ростверковый |
Материал стен Керамические блоки |
Толщина внешних стен 550 мм |
Тип отделки фасада Кирпичная кладка |
Материал перегородок Кирпичные |
Материал перекрытий Железобетонные |
Материал кровли Металлочерепица |
Высота потолков от 3 м |
Количество этажей 2 |
Количество спален 4 |
Количество санузлов 2 |
Кухня-гостинная Да |
Лестница Да |
Окна Да |
Входная дверь Да |
Веранда Да |
Отзывы о подрядчике
10
Максим К.
17 марта 2026
Андрей К.
Построено со Сбером, 17 мар 26


Полина Я.
17 марта 2026
Пользователь Домклик
17 марта 2026
Павел Ч.
18 марта 2026
Екатерина Т.
17 марта 2026
Алексей С.
Построено со Сбером, 19 мар 26
Алексей М.
20 марта 2026
Илья Б.
17 марта 2026
Анна З.
Построено со Сбером, 17 мар 26
Проекты подрядчика "Новация"
Похожие проекты от других подрядчиков
Участки под строительство дома
Подборка для вас!
Участки с подходящей площадью под строительство дома
Платформа Домклик — предоставляет возможность выбора подрядчика для строительства дома.
Выбранный вами подрядчик самостоятельно несет ответственность за качество работ. Мы рекомендуем внимательно изучать его отзывы, рейтинг и портфолио.
Финальные условия кредитования определяются при заключении договора.
Что нужно для строительства?
Какие сроки строительства?
Проконсультируете по строительству?
График работы



